Mieszkanie Chłapowo, ul. Żeromskiego 27
Żeromskiego 27, Chłapowo, Władysławowo, pomorskie
- 933 970 zł
- 43,39 m²
- 21 525 zł/m²
Biuro sprzedaży
Skontaktuj się
Mieszkanie Chłapowo, ul. Żeromskiego 27
Żeromskiego 27, Chłapowo, Władysławowo, pomorskie
zaktualizowane:
27 lutego 2026
Mieszkanie Chłapowo, ul. Żeromskiego 27
Inwestycja: Apartamenty na Klifie
Zaktualizowane: 27 lutego 2026
933 970 zł 43,39 m² 21 525 zł/m²
oddana do użytku
1/3
2
garaż
nowe wykończone
Zobacz na mapie
Stan inwestycji:
oddana do użytkuPiętro:
1/3Liczba pokoi:
2Miejsce postojowe:
garażStan mieszkania:
nowe wykończoneSzczegóły ogłoszenia
- Typ oferty: mieszkanie na sprzedaż
- Cena: 933 970 zł (21 525 zł/m²)
- Termin realizacji: lipiec 2024, oddana do użytku
- Status oferty: dostępne
- Rynek: pierwotny (oferta dewelopera)
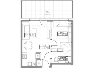
- Charakterystyka mieszkania: 43,39 m², 2 pokoje, 1 łazienka; stan: nowe wykończone
- Budynek: apartamentowiec
- winda
- Rozkład mieszkania: piętro 1/3, jednopoziomowe
- Powierzchnia dodatkowa: balkon (11,4 m²), komórka lokatorska
- Kuchnia: aneks kuchenny
- Miejsce/a postojowe: w garażu wielostanowiskowym, przynależne do mieszkania - z obowiązkiem zakupu; garaż w bryle budynku, winda z poziomu garażu
naziemne - Bezpieczeństwo: teren ogrodzony, monitoring, ochrona
- Źródło: oferta dewelopera: JK Inwest-Hel, zaktualizowane: 27.02.2026
- sygnatura ogłoszenia: E-13
Lokalizacja
- Inwestycja: Apartamenty na Klifie
- Adres: Żeromskiego 27, Chłapowo, Władysławowo, pomorskie
- Otoczenie: obrzeża miasta, tereny zielone i rekreacyjne
- Na terenie inwestycji: plac zabaw
- W pobliżu las, morze
Opis nieruchomości
GOTOWY DO ODBIORU WYKOŃCZONY I WYPOSAŻONY
Podana cena jest ceną brutto i zawiera 23% VAT. Istnieje możliwość odliczenia podatku VAT. (...)

Inwestycja realizowana przez:
JK Inwest-Hel
Biuro sprzedaży
Żeromskiego 27/10
Władysławowo (Chłapowo) 84-120
| MieszkanieE-01 | 33,18 m² | 18 535,26 zł/m² | parter/3 | 2 | 615 000 zł |
| Mieszkanie | ||||
|
||||
| E-01 |
| MieszkanieE-09 | 34,74 m² | 18 765,11 zł/m² | parter/3 | 2 | 651 900 zł |
| Mieszkanie | ||||
|
||||
| E-09 |
| MieszkanieF-07 | 30,28 m² | 17 503,30 zł/m² | parter/3 | 2 | 530 000 zł |
| Mieszkanie | ||||
|
||||
| F-07 |
| MieszkanieWirtualna wizytaF-04 | 37,78 m² | 21 525 zł/m² | parter/3 | 2 | 813 215 zł |
| MieszkanieWirtualna wizyta | ||||
|
||||
| F-04 |
| MieszkanieWirtualna wizytaF-19 | 27,70 m² | 22 017 zł/m² | 2/3 | 1 | 609 871 zł |
| MieszkanieWirtualna wizyta | ||||
|
||||
| F-19 |
| MieszkanieD-35 | 56,39 m² | 21 525 zł/m² | 2/3 | 2 | 1 213 795 zł |
| Mieszkanie | ||||
|
||||
| D-35 |
| MieszkanieE-02 | 43,99 m² | 21 525 zł/m² | parter/3 | 2 | 946 885 zł |
| Mieszkanie | ||||
|
||||
| E-02 |
| MieszkanieE-03 | 36,04 m² | 21 525 zł/m² | parter/3 | 2 | 775 761 zł |
| Mieszkanie | ||||
|
||||
| E-03 |
| MieszkanieE-04 | 36,93 m² | 21 525 zł/m² | parter/3 | 2 | 794 918 zł |
| Mieszkanie | ||||
|
||||
| E-04 |
| MieszkanieE-05 | 36,97 m² | 21 525 zł/m² | parter/3 | 2 | 795 779 zł |
| Mieszkanie | ||||
|
||||
| E-05 |
Biuro sprzedaży
799 378...
799 378 724










